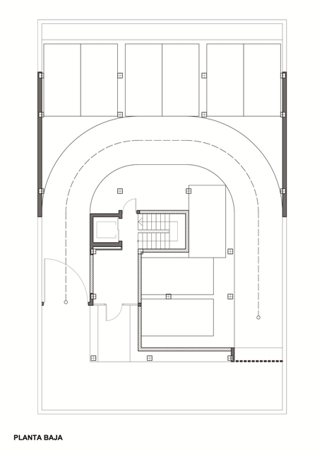
Edificio plurifamiliar Propuesta de diseño para edificio plurifamiliar.Asunción, Paraguay Posted on by motivoyespacio in Arquitectura y Construcción