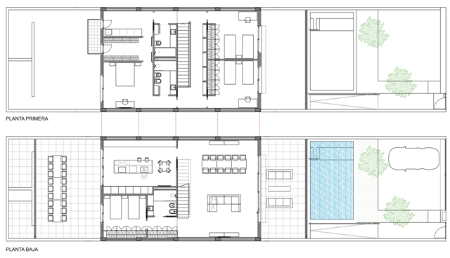
Dirección de Ejecución de Obra de vivienda unifamiliar entre medianeras.
Valencia, España
Arquitecto: Saez + Vigueras Arquitectos
Constructora: Domum Habita Levante






Dirección de Ejecución de Obra de vivienda unifamiliar entre medianeras.
Valencia, España
Arquitecto: Saez + Vigueras Arquitectos
Constructora: Domum Habita Levante





